Model Studio CS Генплан значительно расширяет возможности платформы AutoCAD/nanoCAD, делая работу инженера более комфортной и эффективной. Этот программный комплекс используется при проектировании объектов промышленного и гражданского строительства и предназначен для быстрого и удобного создания существующих и проектных поверхностей, размещения на плане зданий и сооружений, объектов благоустройства, а также для выпуска проектной/рабочей документации.
Model Studio CS Генплан — это программный комплекс, адресованный специалистам отделов изысканий, генеральных планов, а также смежных отделов, разрабатывающих чертежи марки ПОС и ППР.
Программный комплекс Model Studio CS Генплан используется при проектировании объектов промышленного и гражданского строительства и предназначен для быстрого и удобного создания существующих и проектных поверхностей, размещения на плане зданий и сооружений, объектов благоустройства, а также для выпуска проектной/рабочей документации.
Программный комплекс позволяет решать следующие задачи:
создание трехмерной цифровой модели местности (ЦММ) и рельефа (ЦМР);
построение траншей, котлованов, насыпей;
автоматическое построение продольных профилей;
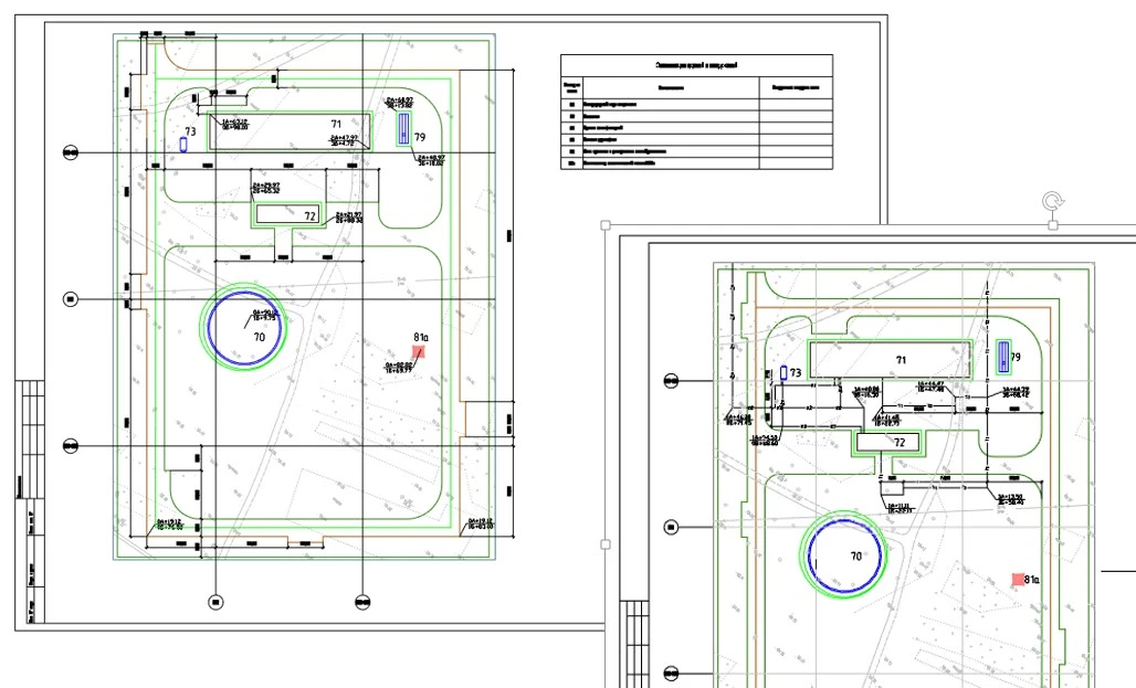
автоматическое формирование ведомостей объемов работ, спецификаций и экспликации зданий и сооружений;
формирование и выпуск проектной и рабочей документации в соответствии с требованиями ГОСТ;
интеграция с системой АВС для автоматизации режима расчета смет на основании данных модели;
выполнение необходимых проверок (на предмет обнаружения коллизий, пересечений, нарушений предельно допустимых расстояний) со смежными специальностями при совместном использовании CADLib Модель и Архив;
интеграция геологической модели с трехмерной моделью Model Studio CS;
использование данных модели для генерации продольного профиля, таблицы условных обозначений и расчета объема земляных работ по геологическим слоям.
Задачи
Создание трехмерной цифровой модели местности (ЦММ) и рельефа (ЦМР).
Построение траншей, котлованов, насыпей.
Автоматическое построение продольных профилей.
Автоматическое формирование ведомостей объемов работ, спецификаций и экспликации зданий и сооружений.
Возможности
База данных оборудования, изделий и материалов
База данных изделий Model Studio CS Генплан включает в себя наборы типовых зданий и сооружений, элементов благоустройства (деревья, кустарники, малые архитектурные формы), элементов автодорог (дорожные знаки, дорожное оборудование, освещение), а также макеты людей и техники. Пользователь может самостоятельно пополнять библиотеку новыми элементами параметрической графики.
Работать с базой данных…
Исходные данные для проектирования
В качестве исходных данных для проектирования могут быть использованы данные разных форматов:
отсканированные чертежи (сколка существующего рельефа и ситуации);
полученные от геодезистов текстовые файлы с точками, имеющими координаты X, Y, Z;
облака точек, полученные посредством лазерного сканирования;
готовые триангуляции (3D-грани), созданные в других программных продуктах;
чертежи в форм…
Цифровая модель рельефа (ЦМР)
Трехмерная модель рельефа формируется в виде 3D-граней и строится с использованием отметок, структурных линий, внутренних контуров. Возможны расчет и отрисовка откосов с выходом на заданную поверхность, а также отрисовка горизонталей. Для редактирования модели используются такие операции, как переброс ребер, изменение отметки и перемещение узла, вставка и удаление точек.
Цифровая модель местности (ЦММ)
Посадку на генплан зданий и сооружений можно осуществить несколькими способами: вставить из библиотеки изделий и материалов, отобразить из базы данных проекта CADLib Модель и Архив или создать контуры сооружений специальной командой. Также на генплане расставляются элементы благоустройства и озеленения. По объектам, размещенным на генплане, можно автоматически получить ведомости и спецификации в с…
Учет геологической обстановки при проектировании и решении прикладных задач
В Model Studio CS Генплан предусмотрен функционал по интеграции проектируемых моделей и данных геологии, импортированных из специализированного ПО. Интеграция осуществляется посредством передачи данных о геологических слоях проектируемого объекта в базу данных проекта Model Studio CS (CadLib Проект).
Основные задачи, решаемые с учетом геологических особенностей:
построение траншей подземных …
Математическое ядро Model Studio CS формирует на основе трехмерной модели чертежи. Программа генерирует планы, виды и разрезы, в автоматическом режиме проставляя отметки, выноски, позиционные обозначения и размеры.
Весь процесс получения чертежа весьма прост, понятен любому проектировщику и сводится к выполнению нескольких несложных действий:
определить линию разреза, а также его глубину и выс…
Результат работы
В результате мы получим чертежи основного комплекта ГП, на которых будут проставлены размеры, выноски, отметки и т.д., при этом все будет выполнено автоматически на основе трехмерной модели.
Разбивочный план. На чертеже отображаются геодезическая сетка, здания и сооружения, дороги, проезды и площадки, элементы планировочного рельефа (откосы, подпорные стенки, пандусы). Экспликация зданий, ве…
Расширенная поддержка 3D-форматов (STL, SAT, STP, IGES, JT, X_T, X_B, VRML и т.д.)
Создание цифровой модели местности
Оцифровка отсканированных чертежей
Управление настройками САПР
Тип
Основной
Конфигурация
Конфигурация
Конфигурация
Конфигурация
Для кого?
Для узкопрофильных компаний
Для компаний из области строительства
Для компаний из области изысканий
Для компаний из области машиностроения
Для крупного бизнеса с различными отраслевыми задачами
nanoCAD
ОсновнойДля узкопрофильных компаний
Создание и редактирование чертежей
Поддержка *.dwg-формата
Печать документов в PDF
Поддержка приложений и скриптов
Оформление чертежей по стандартам СПДС
Оформление чертежей по стандартам ЕСКД
Универсальное 3D-моделирование
Расширенная поддержка 3D-форматов (STL, SAT, STP, IGES, JT, X_T, X_B, VRML и т.д.)
Создание цифровой модели местности
Оцифровка отсканированных чертежей
Управление настройками САПР
Тип
Основной
Для кого?
Для узкопрофильных компаний
nanoCAD Standart Build
КонфигурацияДля компаний из области строительства
Создание и редактирование чертежей
Поддержка *.dwg-формата
Печать документов в PDF
Поддержка приложений и скриптов
Оформление чертежей по стандартам СПДС
Оформление чертежей по стандартам ЕСКД
Универсальное 3D-моделирование
Расширенная поддержка 3D-форматов (STL, SAT, STP, IGES, JT, X_T, X_B, VRML и т.д.)
Создание цифровой модели местности
Оцифровка отсканированных чертежей
Управление настройками САПР
Тип
Конфигурация
Для кого?
Для компаний из области строительства
nanoCAD Standart Geo
КонфигурацияДля компаний из области изысканий
Создание и редактирование чертежей
Поддержка *.dwg-формата
Печать документов в PDF
Поддержка приложений и скриптов
Оформление чертежей по стандартам СПДС
Оформление чертежей по стандартам ЕСКД
Универсальное 3D-моделирование
Расширенная поддержка 3D-форматов (STL, SAT, STP, IGES, JT, X_T, X_B, VRML и т.д.)
Создание цифровой модели местности
Оцифровка отсканированных чертежей
Управление настройками САПР
Тип
Конфигурация
Для кого?
Для компаний из области изысканий
nanoCAD Standart Mech
КонфигурацияДля компаний из области машиностроения
Создание и редактирование чертежей
Поддержка *.dwg-формата
Печать документов в PDF
Поддержка приложений и скриптов
Оформление чертежей по стандартам СПДС
Оформление чертежей по стандартам ЕСКД
Универсальное 3D-моделирование
Расширенная поддержка 3D-форматов (STL, SAT, STP, IGES, JT, X_T, X_B, VRML и т.д.)
Создание цифровой модели местности
Оцифровка отсканированных чертежей
Управление настройками САПР
Тип
Конфигурация
Для кого?
Для компаний из области машиностроения
nanoCAD Pro
КонфигурацияДля крупного бизнеса с различными отраслевыми задачами
Создание и редактирование чертежей
Поддержка *.dwg-формата
Печать документов в PDF
Поддержка приложений и скриптов
Оформление чертежей по стандартам СПДС
Оформление чертежей по стандартам ЕСКД
Универсальное 3D-моделирование
Расширенная поддержка 3D-форматов (STL, SAT, STP, IGES, JT, X_T, X_B, VRML и т.д.)
Создание цифровой модели местности
Оцифровка отсканированных чертежей
Управление настройками САПР
Тип
Конфигурация
Для кого?
Для крупного бизнеса с различными отраслевыми задачами
nanoCAD Металлоконструкции
Разработка документации разделов КЖ и КМ
nanoCAD Стройплощадка
Организация строительства
nanoCAD BIM Электро
ТИМ-проекты по разделам ЭМ, ЭО, ЭН
nanoCAD BIM СКС
ТИМ-проекты по разделу СКС
nanoCAD BIM ОПС
ТИМ-проекты по разделу СБ
nanoCAD GeoniCS
Проекты в области землеустройства, изысканий и генплана
nanoCAD BIM ВК
ТИМ-проекты по разделу ВК
nanoCAD BIM Отопление
ТИМ-проекты по разделу ОВиК
TDMS Фарватер
Управление разработкой проектов
nanoCAD BIM Вентиляция
ТИМ-проекты по разделу ОВиК
nanoCAD Конструкции PS
Разработка документации разделов КЖ и КЖИ
nanoCAD Облака точек
Обработка данных 3D-сканирования
nanoCAD Механика PRO
3D-моделирование и проектирование в машиностроении
Модуль nanoCAD «Сети»
Трассировка инженерных коммуникаций
Модуль nanoCAD «Трассы»
Проектирование линейно-протяженных объектов
Модуль nanoCAD «Сечения»
Поперечные профиля по типовым конструкциям
Модуль nanoCAD «Геомодель»
Инженерно-геологические разрезы и колонки
Модуль nanoCAD «Генплан»
Генеральные планы и вертикальная планировка
nanoCAD BIM Строительство
ТИМ-проекты по разделам КР, КМ, КЖ, КД, АР
nano360
Онлайн-сервис для управления проектными данными
nanoCAD GeoSeries
Инженерные изыскания и проектирование трубопроводов
Модуль nanoCAD GeoniCS «Топоплан»
Для подготовки топографических карт и моделей рельефа
NSR Модуль требований
База знаний в области стандартизации проектирования
NSR Модуль разработки документов
Организация процесса разработки текстов стандартов
NSR Модуль семантической разметки документов
Преобразование текстов документов в машиночитаемый формат
NSR Модуль семантического анализа
Автоматизация перевода нормативных требований
NSR Модуль семантического поиска
ИИ для генерации ответа по тексту документов
TDMS Фарватер Web
Система документооборота и управления проектированием в строительстве
nanoCAD комплект Строительство
Проектирование зданий и сооружений
nanoCAD комплект Инженерия
Проектирование всех инженерных разделов
nanoCAD комплект Землеустройство
Изыскания и землеустройство
nanoCAD комплект Корпоративный
Комплексное проектирование для всех подразделений
Новые возможности
Появилась команда, позволяющая получить по контуру с триангуляцией и структурным линиям 2D/3D-полилинии
Добавлены команды по созданию различных меток по поверхностям и определению отметки в любой точке поверхности
Реализовано построение картограммы между поверхностями
Добавлена команда по объединению контуров с триангуляцией в один
Появилась возможность копирования контура с триангуляцией
Реализована возможность создания контура триангуляции из 3D-граней
Появились команды по работе с данными триангуляции, позволяющие перестроить поверхность (если произошло изменение данных, добавленных в поверхность ранее) и удалить из поверхности данные, добавленные ранее
Доработано одновременное создание сразу нескольких структурных линий и назначение им отметок, а также добавлена команда, позволяющая сформировать структурную линию с перепадом высот
Реализована возможность построения базовых горизонталей по красным горизонталям, добавления и удаления вершин базовых горизонталей, создания базовых горизонталей по точкам
Добавлена команда для прореживания вершин полилиний
Добавлена команда для расстановки объектов озеленения и малых архитектурных форм с заданным шагом вдоль полилинии, структурной линии или по контуру с триангуляцией
Реализована ассоциативная связь здания с номером по экспликации; появилась команда по созданию отметки чистого пола для зданий, сооружений, площадок
Добавлена возможность работы программы в файлах с единицами «Метры»
Системные требования
Графическая платформа
Платформа nanoCAD + Модуль 3D
Процессор
Минимальные требования: процессор с тактовой частотой 2 ГГц
Рекомендуемые требования: процессор с тактовой частотой 3 ГГц и выше
Оперативная память
Минимальные требования: 24 Гб
Рекомендуемые требования: 64 Гб и выше
Видеоадаптер
Минимальные требования: графический процессор с поддержкой 3D-ускорения, объемом видеопамяти 2 Гб
Рекомендуемые требования: графический процессор с поддержкой 3D-ускорения, объемом видеопамяти 8 Гб (поддерживающий OpenGL 2.1 или DirectX 11)
Место на диске
Свободное место на жестком диске — 7 Гб (минимум). Тип жесткого диска — SSD (рекомендуется), HDD
Разрешение экрана
Минимальные требования: 1024х768 px
Рекомендуемые требования: 1280х1024 px
Дополнительное оборудование
Мышь или другие устройства указания
Операционная система
Отечественная операционная система Astra Linux (релиз «Орёл») 2.12.22 64-bit
Windows 8.1, 10, 11 64-bit
СУБД (опционально)
PostgreSQL от 12 до 16 с кодировкой по умолчанию ru_RU.UTF-8 для ОС Linux и кодировкой Russian_Russian.1251 для ОС Windows
SQL Server не ниже 2017 версии, SQL Server Express не ниже 2017 версии
Менеджер библиотеки стандартных компонентов CADLib.exe (приложение для работы с базой данных Model Studio CS, поставляется вместе с Model Studio CS, не требует лицензирования)
О разработчике
CSoft Development — российский разработчик инженерного программного обеспечения и технологий: САПР, BIM, комплексных решений для машиностроения, промышленного и гражданского строительства, архитектурного проектирования, землеустройства, электронного документооборота, обработки сканированных чертежей, векторизации и гибридного редактирования – с многолетним опытом работы на рынке. Компания создает уникальные решения для управления инженерными данными по российским нормам и стандартам. Предлагаемые компанией CSoft Development современные разработки на базе 2D- и 3D-технологий – Model Studio CS и CADLib Model и Архив, TDMS, AutomatiCS, MechaniCS и многие другие – позволяют проектным организациям автоматизировать выполнение множества повседневных задач, значительно повысить конкурентоспособность и культуру производства, открывают перспективы освоения новейших методик проектирования, позволяют решать задачи в области САПР на самом высоком уровне и с учетом российских реалий.
Скидка до 90%!На перевод постоянных лицензий Платформы nanoCAD!
К сайту подключен сервис веб-аналитики «Яндекс.Метрика», использующий cookie.
Оставаясь на сайте, вы соглашаетесь с
Политикой обработки персональных данных.