Программный комплекс Model Studio CS ОПС позволяет разрабатывать и моделировать системы охранно-пожарной сигнализации, системы оповещения и управления эвакуацией, системы контроля и управления доступом, системы видеонаблюдения. Функционал программы также обеспечивает возможность осуществлять прокладку кабелей по кабельным конструкциям, формировать и выпускать кабельный журнал шлейфов, кабельный журнал, спецификацию на оборудование, кабели и кабельные конструкции, ведомости объемов работ, планы расположения оборудования и прокладки кабелей, структурные схемы. Программный комплекс включен в общую технологию проектирования, реализованную в линейке программных продуктов Model Studio CS.
Задачи
Создание зон ОПС для расчета автоматической расстановки пожарных извещателей.
Автоматическая расстановка пожарных извещателей в зонах ОПС с учетом алгоритма принятия решений о пожаре и решетки расстановки (СП 484.1 311 500.2020).
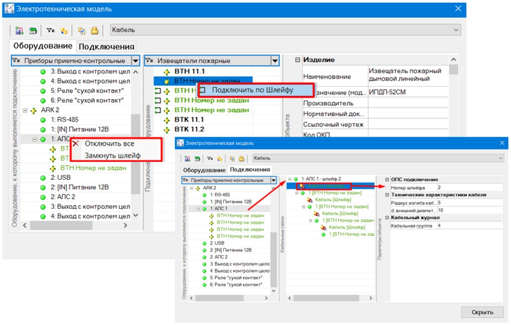
Подключение оборудования по шлейфу.
Конструирование и компоновка кабельных конструкций любой сложности в трехмерном пространстве.
Трассировка и раскладка кабелей.
Получение оформленных планов, разрезов и сечений на кабельные конструкции.
Получение структурных схем.
Формирование и выпуск полного комплекта табличной документации по кабельной раскладке — с рамками, штампами, эмблемами и т.п. (в форматах MS Word, MS Excel, nanoCAD/AutoCAD).
Интеграция с программным комплексом для информационной поддержки процессов строительства и эксплуатации промышленных объектов CADLib Модель и Архив.
Возможности
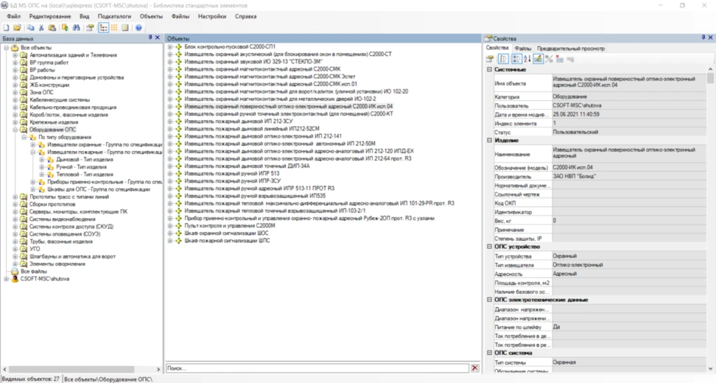
База данных
База данных программы Model Studio CS ОПС включает в себя информацию по специализированному оборудованию, изделиям и материалам, применяемым для выполнения трехмерной модели систем охранно-пожарной сигнализации и кабельной раскладки. Данные об объектах базы хранятся в CADLib — Менеджере библиотек стандартных компонентов для линейки программ Model Studio CS, в основу которого положена СУБД Microsof…
Создание зон ОПС
Программа Model Studio CS ОПС позволяет создавать зоны ОПС, которые моделируют в трехмерном пространстве объем, подлежащий защите с помощью элементов охранной и пожарной сигнализации. Зона ОПС формируется пользователем путем отрисовки ее контура или же путем считывания контуров объекта проекта «Помещение». При создании зоны ОПС выбирается алгоритм принятия решения о пожаре, от которого будет завис…
Автоматическая расстановка пожарных извещателей по СП 484.1311500.2020
Программа Model Studio CS ОПС позволяет автоматически расставлять пожарные извещатели в заранее созданных зонах ОПС. Автоматическая расстановка пожарных извещателей выполняется на основе СП 484.1311500.2020. При этом учитываются алгоритм принятия решения о пожаре (влияет на количество извещателей в зоне) и тип решетки расстановки извещателей (влияет на способ размещения извещателей в зоне относите…
Проверка расстановки пожарных извещателей
Функционал программы позволяет выполнять проверку ручной расстановки пожарных извещателей в зонах ОПС на соответствие требованиям СП 484.1311500.2020, а именно проверки количества извещателей в определенной зоне и расстояния друг от друга и от стен в зоне ОПС. При нарушении условий проверки создается объект «Коллизия». Этот функционал поможет отследить и предотвратить возможные ошибки при проектир…
Подключение оборудования и раскладка кабеля
Подключение оборудования в программном комплексе Model Studio CS выполняется с помощью специального окна Менеджера подключений, которое обеспечивает прямой доступ ко всем элементам проектируемой системы, задействованным в соединениях в том или ином месте, а также управление всеми соединениями системы на разных этажах и в разных помещениях. Этот редактор позволяет подключать оборудование по шлейфу,…
Получение табличной документации
Спецификацию на оборудование, кабели и кабельные конструкции можно вывести в требуемый формат выходного документа. Перечень и количество примененных изделий вы можете в режиме реального времени просмотреть непосредственно в программе: для этого предназначен специализированный инструмент — Спецификатор.
Кабельный журнал и кабельный журнал шлейфов также можно отслеживать в режиме реального времен…
Получение графической документации
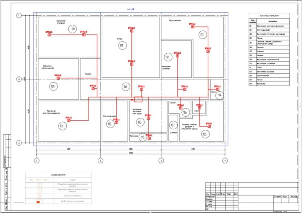
Программа позволяет получить план расположения оборудования и прокладки кабелей и сечений по кабельным конструкциям с выносками, обозначениями и подписями. Достаточно указать места сечений, при этом программа автоматически проставляет выноски с позициями кабелей, проложенных в данном месте.
Также программа позволяет сгенерировать таблицу с условными обозначениями оборудования и типами линий на …
Расширенная поддержка 3D-форматов (STL, SAT, STP, IGES, JT, X_T, X_B, VRML и т.д.)
Создание цифровой модели местности
Оцифровка отсканированных чертежей
Управление настройками САПР
Тип
Основной
Конфигурация
Конфигурация
Конфигурация
Конфигурация
Для кого?
Для узкопрофильных компаний
Для компаний из области строительства
Для компаний из области изысканий
Для компаний из области машиностроения
Для крупного бизнеса с различными отраслевыми задачами
nanoCAD
ОсновнойДля узкопрофильных компаний
Создание и редактирование чертежей
Поддержка *.dwg-формата
Печать документов в PDF
Поддержка приложений и скриптов
Оформление чертежей по стандартам СПДС
Оформление чертежей по стандартам ЕСКД
Универсальное 3D-моделирование
Расширенная поддержка 3D-форматов (STL, SAT, STP, IGES, JT, X_T, X_B, VRML и т.д.)
Создание цифровой модели местности
Оцифровка отсканированных чертежей
Управление настройками САПР
Тип
Основной
Для кого?
Для узкопрофильных компаний
nanoCAD Standart Build
КонфигурацияДля компаний из области строительства
Создание и редактирование чертежей
Поддержка *.dwg-формата
Печать документов в PDF
Поддержка приложений и скриптов
Оформление чертежей по стандартам СПДС
Оформление чертежей по стандартам ЕСКД
Универсальное 3D-моделирование
Расширенная поддержка 3D-форматов (STL, SAT, STP, IGES, JT, X_T, X_B, VRML и т.д.)
Создание цифровой модели местности
Оцифровка отсканированных чертежей
Управление настройками САПР
Тип
Конфигурация
Для кого?
Для компаний из области строительства
nanoCAD Standart Geo
КонфигурацияДля компаний из области изысканий
Создание и редактирование чертежей
Поддержка *.dwg-формата
Печать документов в PDF
Поддержка приложений и скриптов
Оформление чертежей по стандартам СПДС
Оформление чертежей по стандартам ЕСКД
Универсальное 3D-моделирование
Расширенная поддержка 3D-форматов (STL, SAT, STP, IGES, JT, X_T, X_B, VRML и т.д.)
Создание цифровой модели местности
Оцифровка отсканированных чертежей
Управление настройками САПР
Тип
Конфигурация
Для кого?
Для компаний из области изысканий
nanoCAD Standart Mech
КонфигурацияДля компаний из области машиностроения
Создание и редактирование чертежей
Поддержка *.dwg-формата
Печать документов в PDF
Поддержка приложений и скриптов
Оформление чертежей по стандартам СПДС
Оформление чертежей по стандартам ЕСКД
Универсальное 3D-моделирование
Расширенная поддержка 3D-форматов (STL, SAT, STP, IGES, JT, X_T, X_B, VRML и т.д.)
Создание цифровой модели местности
Оцифровка отсканированных чертежей
Управление настройками САПР
Тип
Конфигурация
Для кого?
Для компаний из области машиностроения
nanoCAD Pro
КонфигурацияДля крупного бизнеса с различными отраслевыми задачами
Создание и редактирование чертежей
Поддержка *.dwg-формата
Печать документов в PDF
Поддержка приложений и скриптов
Оформление чертежей по стандартам СПДС
Оформление чертежей по стандартам ЕСКД
Универсальное 3D-моделирование
Расширенная поддержка 3D-форматов (STL, SAT, STP, IGES, JT, X_T, X_B, VRML и т.д.)
Создание цифровой модели местности
Оцифровка отсканированных чертежей
Управление настройками САПР
Тип
Конфигурация
Для кого?
Для крупного бизнеса с различными отраслевыми задачами
nanoCAD Металлоконструкции
Разработка документации разделов КЖ и КМ
nanoCAD Стройплощадка
Организация строительства
nanoCAD BIM Электро
ТИМ-проекты по разделам ЭМ, ЭО, ЭН
nanoCAD BIM СКС
ТИМ-проекты по разделу СКС
nanoCAD BIM ОПС
ТИМ-проекты по разделу СБ
nanoCAD GeoniCS
Проекты в области землеустройства, изысканий и генплана
nanoCAD BIM ВК
ТИМ-проекты по разделу ВК
nanoCAD BIM Отопление
ТИМ-проекты по разделу ОВиК
TDMS Фарватер
Управление разработкой проектов
nanoCAD BIM Вентиляция
ТИМ-проекты по разделу ОВиК
nanoCAD Конструкции PS
Разработка документации разделов КЖ и КЖИ
nanoCAD Облака точек
Обработка данных 3D-сканирования
nanoCAD Механика PRO
3D-моделирование и проектирование в машиностроении
Модуль nanoCAD «Сети»
Трассировка инженерных коммуникаций
Модуль nanoCAD «Трассы»
Проектирование линейно-протяженных объектов
Модуль nanoCAD «Сечения»
Поперечные профиля по типовым конструкциям
Модуль nanoCAD «Геомодель»
Инженерно-геологические разрезы и колонки
Модуль nanoCAD «Генплан»
Генеральные планы и вертикальная планировка
nanoCAD BIM Строительство
ТИМ-проекты по разделам КР, КМ, КЖ, КД, АР
nano360
Онлайн-сервис для управления проектными данными
nanoCAD GeoSeries
Инженерные изыскания и проектирование трубопроводов
Модуль nanoCAD GeoniCS «Топоплан»
Для подготовки топографических карт и моделей рельефа
NSR Модуль требований
База знаний в области стандартизации проектирования
NSR Модуль разработки документов
Организация процесса разработки текстов стандартов
NSR Модуль семантической разметки документов
Преобразование текстов документов в машиночитаемый формат
NSR Модуль семантического анализа
Автоматизация перевода нормативных требований
NSR Модуль семантического поиска
ИИ для генерации ответа по тексту документов
TDMS Фарватер Web
Система документооборота и управления проектированием в строительстве
nanoCAD комплект Строительство
Проектирование зданий и сооружений
nanoCAD комплект Инженерия
Проектирование всех инженерных разделов
nanoCAD комплект Землеустройство
Изыскания и землеустройство
nanoCAD комплект Корпоративный
Комплексное проектирование для всех подразделений
Новые возможности
Настроена палитра нового окна базы данных
Добавлена возможность делить лоток/короб, отрисованный по технологии миникаталогов, на секции определенной длины
Доработан функционал Менеджера подключений по переносу кабелей из одного узла в другой. При переносе кабеля/шлейфа из одного узла в другой его параметры (кабельная группа, номер шлейфа) сохраняются
Реализован функционал по проверке соблюдения минимальных расстояний между кабелями разных групп по вертикали
Разработан функционал создания трассы по сечению. Пользователю доступны создание и редактирование сечений в специализированном окне, построение трасс по выбранному сечению, корректировка отдельных участков трасс в соответствии с выбранным сечением
Доработан алгоритм подключения оборудования по шлейфу из чертежа. Порядок следования объектов в шлейфе соответствует последовательности выбора оборудования на чертеже
Добавлена возможность включения/отключения автонумерации объектов после сохранения изменений в окне Менеджера подключений
Доработан функционал построения трасс с помощью прототипов. Добавлена возможность указания угла расположения прототипа при смене отрисовки с вертикального участка на горизонтальный и при построении первого горизонтального участка
Откорректирован механизм подключения к узлу в окне Менеджера подключений
Теперь при подключении устройств через пункты меню Подключить/Подключить по шлейфу у подключаемого объекта показываются только узлы, совпадающие по типу подключения с узлом, к которому выполняется подключение.
В новой версии Model Studio CS ОПС реализован функционал расчета емкости аккумуляторных батарей резервированного источника питания. Таблица с расчетом автоматически генерируется для каждого РИП в формате dwg
Системные требования
Графическая платформа
Платформа nanoCAD + Модуль 3D
Процессор
Минимальные требования: процессор с тактовой частотой 2 ГГц
Рекомендуемые требования: процессор с тактовой частотой 3 ГГц и выше
Оперативная память
Минимальные требования: 24 Гб
Рекомендуемые требования: 64 Гб и выше
Видеоадаптер
Минимальные требования: графический процессор с поддержкой 3D-ускорения, объемом видеопамяти 2 Гб
Рекомендуемые требования: графический процессор с поддержкой 3D-ускорения, объемом видеопамяти 8 Гб (поддерживающий OpenGL 2.1 или DirectX 11)
Место на диске
Свободное место на жестком диске — 7 Гб (минимум). Тип жесткого диска — SSD (рекомендуется), HDD
Разрешение экрана
Минимальные требования: 1024х768 px
Рекомендуемые требования: 1280х1024 px
Дополнительное оборудование
Мышь или другие устройства указания
Операционная система
Отечественная операционная система Astra Linux (релиз «Орёл») 2.12.22 64-bit
Windows 8.1, 10, 11 64-bit
СУБД (опционально)
PostgreSQL от 12 до 16 с кодировкой по умолчанию ru_RU.UTF-8 для ОС Linux и кодировкой Russian_Russian.1251 для ОС Windows
SQL Server не ниже 2017 версии, SQL Server Express не ниже 2017 версии
Менеджер библиотеки стандартных компонентов CADLib.exe (приложение для работы с базой данных Model Studio CS, поставляется вместе с Model Studio CS, не требует лицензирования)
О разработчике
CSoft Development — российский разработчик инженерного программного обеспечения и технологий: САПР, BIM, комплексных решений для машиностроения, промышленного и гражданского строительства, архитектурного проектирования, землеустройства, электронного документооборота, обработки сканированных чертежей, векторизации и гибридного редактирования – с многолетним опытом работы на рынке. Компания создает уникальные решения для управления инженерными данными по российским нормам и стандартам. Предлагаемые компанией CSoft Development современные разработки на базе 2D- и 3D-технологий – Model Studio CS и CADLib Model и Архив, TDMS, AutomatiCS, MechaniCS и многие другие – позволяют проектным организациям автоматизировать выполнение множества повседневных задач, значительно повысить конкурентоспособность и культуру производства, открывают перспективы освоения новейших методик проектирования, позволяют решать задачи в области САПР на самом высоком уровне и с учетом российских реалий.
Скидка до 90%!На перевод постоянных лицензий Платформы nanoCAD!
К сайту подключен сервис веб-аналитики «Яндекс.Метрика», использующий cookie.
Оставаясь на сайте, вы соглашаетесь с
Политикой обработки персональных данных.