Программный комплекс Model Studio CS Отопление и вентиляция предназначен для трехмерного проектирования, компоновки и выпуска проектной/рабочей документации по внутренним системам отопления, вентиляции и кондиционирования воздуха на проектируемых или реконструируемых объектах. Model Studio CS Отопление и вентиляция значительно расширяет возможности платформ AutoCAD и nanoCAD в области трехмерного проектирования промышленных и гражданских объектов, делая работу инженера более комфортной и эффективной.
Комплекс позволяет решать следующие основные задачи: трехмерная компоновка и моделирование; аэродинамический расчет и проверка инженерных решений; формирование и выпуск проектной и рабочей документации.
Model Studio CS Отопление и вентиляция спроектирован и создан в России коллективом специалистов, обладающих огромным опытом работы как на российском, так и на мировом рынке. Документация, формируемая с помощью этого программного комплекса, строго соответствует требованиям российских государственных и отраслевых стандартов.
Текущая версия комплекса работает в среде nanoCAD или AutoCAD. В рамках задач трехмерного проектирования, решаемых средствами Model Studio CS Отопление и вентиляция:
производится трехмерная компоновка оборудования;
выполняется трехмерное эскизирование трубопроводов/воздуховодов с их последующим конструированием или построение трубопроводов/воздуховодов из стандартных элементов базы данных с использованием миникаталогов («спеков»);
формируются трехмерные параметрические модели оборудования;
выполняются все необходимые проверки на предмет обнаружения коллизий, пересечений, нарушений предельно допустимых расстояний со смежными специальностями при совместном использовании CADLib Модель и Архив;
средствами программы производится аэродинамический расчет систем вентиляции. Вывод результатов расчета в графическую и табличную документацию;
взаимодействие между проектировщиками в процессе работы над одним проектом (выдача заданий смежным отделам);
генерируются чертежи с автоматическим формированием планов, видов, разрезов, план-схем, изометрических видов и чертежей;
автоматически проставляются отметки уровня, выноски, позиционные обозначения и размеры;
генерируется аксонометрическая схема как одного трубопровода/воздуховода, так и всей модели целиком — с автоматической простановкой размеров, выносок, позиционных обозначений и иных элементов оформления;
генерируется изометрическая схема трубопровода или всей модели с автоматической разбивкой на отдельные листы и автоматической простановкой размеров, выносок, позиционных обозначений;
автоматически составляются спецификации, экспликации и ведомости, на основе стандартных шаблонов, включенных в комплект поставки. Кроме того, имеется возможность самостоятельно добавлять и редактировать формы и шаблоны экспорта табличных документов. Созданные документы будут автоматически заполняться с сохранением в форматах MS Word, MS Excel, Rich Text Format (RTF) и непосредственно в чертеже AutoCAD/NanoCAD (спецификация на лист, экспликация на лист).
Задачи
Производство трехмерной компоновки оборудования.
Выполнение трехмерного эскизирования трубопроводов/воздуховодов с их последующим конструированием или построение трубопроводов/воздуховодов из стандартных элементов базы данных с использованием миникаталогов («спеков»).
Формирование трехмерных параметрических моделей оборудования.
Выполнение всех необходимых проверок на предмет обнаружения коллизий, пересечений, нарушений предельно допустимых расстояний со смежными специальностями при совместном использовании CADLib Модель и Архив.
Возможности
Компоновка оборудования
Компоновка (размещение) оборудования в трехмерном пространстве является одним из наиболее ответственных технических решений при проектировании. Для решения компоновочной задачи в Model Studio CS Водоснабжение и канализация предусмотрены все необходимые инструменты и функции. Они обеспечивают удобство работы и возможность проверки допустимых расстояний в любой момент и на любом этапе создания проек…
База данных оборудования, изделий и материалов
Model Studio CS предоставляет возможность использовать в проектируемых установках готовое оборудование из базы данных оборудования, изделий и материалов. База данных оборудования, изделий и материалов непосредственно встроена в среду проектирования и не требует вызова дополнительных программ.
Каталоги оборудования, изделий и материалов, входящие в стандартную поставку Model Studio CS, охватывают …
Проверка модели на коллизии
Построение трехмерной модели и ее визуальный анализ при большой плотности трубопроводов/воздуховодов, оборудования и конструкций могут вызывать трудности. Кроме того, если пользоваться обычными решениями, может оказаться весьма трудоемким измерение расстояний между объектами модели.
Model Studio CS включает специальный функционал для автоматической проверки нарушений расстояний и самопересечени…
Аэродинамический расчет систем вентиляции средствами Model Studio
Model Studio CS Отопление и вентиляция позволяет выполнять расчет расходов и аэродинамических характеристик системы вентиляции. Исходными данными для расчета являются расходы воздуха на конечных элементах системы вентиляции: диффузоры, решетки и пр. Полученные результаты расчета сохраняются в параметрах элементов системы вентиляции и могут быть выведены в табличном виде (таблица Word, Excel, CAD-п…
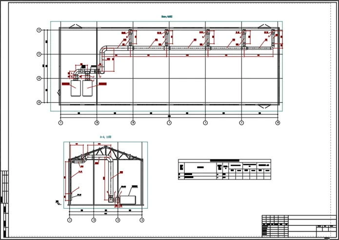
Автоматическая генерация чертежей планов, видов, разрезов и схем
Model Studio CS Отопление и вентиляция располагает уникальными средствами документирования, которые обеспечивают автоматическое получение высококачественных чертежей.
Разработчики Model Studio CS Отопление и вентиляция постарались сделать процесс документирования удобным, простым, не требующим специальных знаний, но в то же время позволяющим получать необходимую документацию быстро и качественн…
Автоматическое формирование спецификации и табличных документов
На основе разрабатываемой средствами Model Studio CS трехмерной информационной модели генерируется полный комплект табличной документации: спецификации оборудования и материалов, заказные спецификации, экспликации оборудования и др. Генерация происходит полностью в автоматическом режиме, пользователю необходимо лишь выбрать требуемый шаблон и формат приложения, в которое будет выгружен финальный в…
Работа в CADLib Проект
Трехмерные модели, чертежи и спецификации, создаваемые в Model Studio CS Отопление и вентиляция полностью интегрированы в единую среду комплексного проектирования на основе технологии CADLib Проект. Совместная работа в единой базе данных проекта позволяет свести к минимуму ошибки проектирования и повысить качество разрабатываемых моделей.
В любой момент разработки трехмерной модели пользователь…
Расширенная поддержка 3D-форматов (STL, SAT, STP, IGES, JT, X_T, X_B, VRML и т.д.)
Создание цифровой модели местности
Оцифровка отсканированных чертежей
Управление настройками САПР
Тип
Основной
Конфигурация
Конфигурация
Конфигурация
Конфигурация
Для кого?
Для узкопрофильных компаний
Для компаний из области строительства
Для компаний из области изысканий
Для компаний из области машиностроения
Для крупного бизнеса с различными отраслевыми задачами
nanoCAD
ОсновнойДля узкопрофильных компаний
Создание и редактирование чертежей
Поддержка *.dwg-формата
Печать документов в PDF
Поддержка приложений и скриптов
Оформление чертежей по стандартам СПДС
Оформление чертежей по стандартам ЕСКД
Универсальное 3D-моделирование
Расширенная поддержка 3D-форматов (STL, SAT, STP, IGES, JT, X_T, X_B, VRML и т.д.)
Создание цифровой модели местности
Оцифровка отсканированных чертежей
Управление настройками САПР
Тип
Основной
Для кого?
Для узкопрофильных компаний
nanoCAD Standart Build
КонфигурацияДля компаний из области строительства
Создание и редактирование чертежей
Поддержка *.dwg-формата
Печать документов в PDF
Поддержка приложений и скриптов
Оформление чертежей по стандартам СПДС
Оформление чертежей по стандартам ЕСКД
Универсальное 3D-моделирование
Расширенная поддержка 3D-форматов (STL, SAT, STP, IGES, JT, X_T, X_B, VRML и т.д.)
Создание цифровой модели местности
Оцифровка отсканированных чертежей
Управление настройками САПР
Тип
Конфигурация
Для кого?
Для компаний из области строительства
nanoCAD Standart Geo
КонфигурацияДля компаний из области изысканий
Создание и редактирование чертежей
Поддержка *.dwg-формата
Печать документов в PDF
Поддержка приложений и скриптов
Оформление чертежей по стандартам СПДС
Оформление чертежей по стандартам ЕСКД
Универсальное 3D-моделирование
Расширенная поддержка 3D-форматов (STL, SAT, STP, IGES, JT, X_T, X_B, VRML и т.д.)
Создание цифровой модели местности
Оцифровка отсканированных чертежей
Управление настройками САПР
Тип
Конфигурация
Для кого?
Для компаний из области изысканий
nanoCAD Standart Mech
КонфигурацияДля компаний из области машиностроения
Создание и редактирование чертежей
Поддержка *.dwg-формата
Печать документов в PDF
Поддержка приложений и скриптов
Оформление чертежей по стандартам СПДС
Оформление чертежей по стандартам ЕСКД
Универсальное 3D-моделирование
Расширенная поддержка 3D-форматов (STL, SAT, STP, IGES, JT, X_T, X_B, VRML и т.д.)
Создание цифровой модели местности
Оцифровка отсканированных чертежей
Управление настройками САПР
Тип
Конфигурация
Для кого?
Для компаний из области машиностроения
nanoCAD Pro
КонфигурацияДля крупного бизнеса с различными отраслевыми задачами
Создание и редактирование чертежей
Поддержка *.dwg-формата
Печать документов в PDF
Поддержка приложений и скриптов
Оформление чертежей по стандартам СПДС
Оформление чертежей по стандартам ЕСКД
Универсальное 3D-моделирование
Расширенная поддержка 3D-форматов (STL, SAT, STP, IGES, JT, X_T, X_B, VRML и т.д.)
Создание цифровой модели местности
Оцифровка отсканированных чертежей
Управление настройками САПР
Тип
Конфигурация
Для кого?
Для крупного бизнеса с различными отраслевыми задачами
nanoCAD Металлоконструкции
Разработка документации разделов КЖ и КМ
nanoCAD Стройплощадка
Организация строительства
nanoCAD BIM Электро
ТИМ-проекты по разделам ЭМ, ЭО, ЭН
nanoCAD BIM СКС
ТИМ-проекты по разделу СКС
nanoCAD BIM ОПС
ТИМ-проекты по разделу СБ
nanoCAD GeoniCS
Проекты в области землеустройства, изысканий и генплана
nanoCAD BIM ВК
ТИМ-проекты по разделу ВК
nanoCAD BIM Отопление
ТИМ-проекты по разделу ОВиК
TDMS Фарватер
Управление разработкой проектов
nanoCAD BIM Вентиляция
ТИМ-проекты по разделу ОВиК
nanoCAD Конструкции PS
Разработка документации разделов КЖ и КЖИ
nanoCAD Облака точек
Обработка данных 3D-сканирования
nanoCAD Механика PRO
3D-моделирование и проектирование в машиностроении
Модуль nanoCAD «Сети»
Трассировка инженерных коммуникаций
Модуль nanoCAD «Трассы»
Проектирование линейно-протяженных объектов
Модуль nanoCAD «Сечения»
Поперечные профиля по типовым конструкциям
Модуль nanoCAD «Геомодель»
Инженерно-геологические разрезы и колонки
Модуль nanoCAD «Генплан»
Генеральные планы и вертикальная планировка
nanoCAD BIM Строительство
ТИМ-проекты по разделам КР, КМ, КЖ, КД, АР
nano360
Онлайн-сервис для управления проектными данными
nanoCAD GeoSeries
Инженерные изыскания и проектирование трубопроводов
Модуль nanoCAD GeoniCS «Топоплан»
Для подготовки топографических карт и моделей рельефа
NSR Модуль требований
База знаний в области стандартизации проектирования
NSR Модуль разработки документов
Организация процесса разработки текстов стандартов
NSR Модуль семантической разметки документов
Преобразование текстов документов в машиночитаемый формат
NSR Модуль семантического анализа
Автоматизация перевода нормативных требований
NSR Модуль семантического поиска
ИИ для генерации ответа по тексту документов
TDMS Фарватер Web
Система документооборота и управления проектированием в строительстве
nanoCAD комплект Строительство
Проектирование зданий и сооружений
nanoCAD комплект Инженерия
Проектирование всех инженерных разделов
nanoCAD комплект Землеустройство
Изыскания и землеустройство
nanoCAD комплект Корпоративный
Комплексное проектирование для всех подразделений
Системные требования
Графическая платформа
Платформа nanoCAD + Модуль 3D
Процессор
Минимальные требования: процессор с тактовой частотой 2 ГГц
Рекомендуемые требования: процессор с тактовой частотой 3 ГГц и выше
Оперативная память
Минимальные требования: 24 Гб
Рекомендуемые требования: 64 Гб и выше
Видеоадаптер
Минимальные требования: графический процессор с поддержкой 3D-ускорения, объемом видеопамяти 2 Гб
Рекомендуемые требования: графический процессор с поддержкой 3D-ускорения, объемом видеопамяти 8 Гб (поддерживающий OpenGL 2.1 или DirectX 11)
Место на диске
Свободное место на жестком диске — 7 Гб (минимум). Тип жесткого диска — SSD (рекомендуется), HDD
Разрешение экрана
Минимальные требования: 1024х768 px
Рекомендуемые требования: 1280х1024 px
Дополнительное оборудование
Мышь или другие устройства указания
Операционная система
Отечественная операционная система Astra Linux (релиз «Орёл») 2.12.22 64-bit
Windows 8.1, 10, 11 64-bit
О разработчике
CSoft Development — российский разработчик инженерного программного обеспечения и технологий: САПР, BIM, комплексных решений для машиностроения, промышленного и гражданского строительства, архитектурного проектирования, землеустройства, электронного документооборота, обработки сканированных чертежей, векторизации и гибридного редактирования – с многолетним опытом работы на рынке. Компания создает уникальные решения для управления инженерными данными по российским нормам и стандартам. Предлагаемые компанией CSoft Development современные разработки на базе 2D- и 3D-технологий – Model Studio CS и CADLib Model и Архив, TDMS, AutomatiCS, MechaniCS и многие другие – позволяют проектным организациям автоматизировать выполнение множества повседневных задач, значительно повысить конкурентоспособность и культуру производства, открывают перспективы освоения новейших методик проектирования, позволяют решать задачи в области САПР на самом высоком уровне и с учетом российских реалий.
Скидка до 90%!На перевод постоянных лицензий Платформы nanoCAD!
К сайту подключен сервис веб-аналитики «Яндекс.Метрика», использующий cookie.
Оставаясь на сайте, вы соглашаетесь с
Политикой обработки персональных данных.