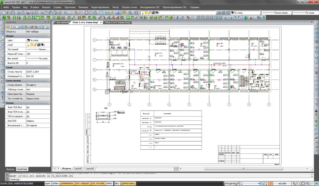
Специализированное программное обеспечение nanoCAD BIM СКС – инструмент, позволяющий повысить эффективность труда при проектировании структурированных кабельных систем, на сленге проектировщиков – «слаботочки». Наличие собственного графического ядра делает nanoCAD BIM СКС независимым от других графических систем, поддержка формата *.dwg способствует обмену информации со смежниками и заказчиками.
В nanoCAD BIM СКС сочетаются удобный, специально сконструированный интерфейс, точно подобранные и настроенные инструменты графического отображения, а также средства для выполнения необходимых расчетов при подборе оборудования.
Задачи
Автоматическая и ручная расстановка оборудования.
Автоматические расчеты модели и оборудования.
Автоматические проверки модели на корректность ее построения.
Автоматическая трассировка кабелей по кабельным трассам.
Автоматическая маркировка оборудования, формирование выносок и сечений.
Проектирование структурированных кабельных систем различной сложности.
Возможности
Подсистемы СКС
Согласно ГОСТ Р 53246-2008 в nanoCAD BIM СКС представлены следующие подсистемы СКС:
горизонтальная подсистема;
магистральная подсистема;
подсистема рабочего места;
подсистема;
телекоммуникационной;
администрирование.
Автоматическая расстановка рабочих мест
Рабочие места могут устанавливаться вручную или в автоматическом режиме. Автоматическая установка возможна как для одного помещения – с точной настройкой количества рабочих мест, так и для нескольких выбранных помещений – с учетом их площади, а также площади на одно рабочее место, заданной для этих помещений.
Создание системы кабельных каналов
Используются три основных типа кабельных каналов: лотки, трубы и короба. Проводится автоматический подбор соединительных элементов: тройников, поворотов, отводов, заглушек. При работе с лотками подбираются и установочные элементы для их крепления.
Работа с электротехнической моделью
В проекте все соединения включаются в единую электротехническую модель (ЭТМ), которая позволяет быстро и безошибочно создать соединения как горизонтальной, так и магистральной подсистемы здания.
Работа с базами данных производителей оборудования
К nanoCAD BIM СКС прилагаются базы данных производителей структурированных кабельных систем, шкафов и кабеленесущих систем. Все базы легко редактируются и пополняются. Кроме того, для группы пользователей можно организовать на сервере общую сетевую библиотеку баз данных оборудования. При запуске программы локальные базы синхронизируются с сетевой, что позволяет работать даже без сетевого подключен…
Выгрузка модели в IFC
Реализация основного принципа OpenBIM-проектирования: создание единой информационной модели проектируемой системы с помощью наиболее подходящих и проверенных временем инструментов. Благодаря поддержке экспорта в обменные файлы стандарта IFC информационные модели структурированных кабельных систем, выполненные в nanoCAD BIM СКС, легко встраиваются в общую модель проектируемого объекта, реализованну…
Ядро системы
nanoCAD – российская универсальная САПР-платформа, содержащая все необходимые инструменты базового проектирования и выпуска чертежей.
Удобство и «дружественность» nanoCAD обеспечиваются принятыми традиционными методами работы и знакомым интерфейсом. Освоить платформу nanoCAD сможет практически любой проектировщик, имеющий опыт работы в популярных САПР: меню, иконки кнопок, панели и командная стро…
Организация работы
Одним из факторов успешного выполнения проекта является доступ к информации по проекту. Работа в nanoCAD BIM СКС построена вокруг инструмента Менеджер проекта – фактически центральной базы данных проекта, которая содержит чертежи, автоматически формируемые отчеты и результаты расчетов, а также позволяет собрать все необходимые документы для выполнения проекта (техническое задание, пояснитель…
3D-модель проектируемой системы
3D-модель создается на основе расставленного оборудования и проложенных кабельных каналов, а также параметра высоты, установленного в каждом объекте на плане этажа.
Формирование 3D-модели происходит непосредственно на чертеже плана этажа, что обеспечивает доступ к объектам, позволяя изменять их характеристики.
При создании 3D-модели каждый элемент размещается в собственный слой, …
Документирование проекта
nanoCAD BIM СКС позволяет не только минимизировать ошибки при проектировании, но и получить в автоматизированном режиме сформированные отчетные документы в соответствии с отечественными стандартами и выгрузить их либо на поле чертежа, либо во внешние системы Microsoft Office, OpenOffice.org. В частности, пользователь в любой момент может получить следующие согласованные документы:
…
Расширенная поддержка 3D-форматов (STL, SAT, STP, IGES, JT, X_T, X_B, VRML и т.д.)
Создание цифровой модели местности
Оцифровка отсканированных чертежей
Управление настройками САПР
Тип
Основной
Конфигурация
Конфигурация
Конфигурация
Конфигурация
Для кого?
Для узкопрофильных компаний
Для компаний из области строительства
Для компаний из области изысканий
Для компаний из области машиностроения
Для крупного бизнеса с различными отраслевыми задачами
nanoCAD
ОсновнойДля узкопрофильных компаний
Создание и редактирование чертежей
Поддержка *.dwg-формата
Печать документов в PDF
Поддержка приложений и скриптов
Оформление чертежей по стандартам СПДС
Оформление чертежей по стандартам ЕСКД
Универсальное 3D-моделирование
Расширенная поддержка 3D-форматов (STL, SAT, STP, IGES, JT, X_T, X_B, VRML и т.д.)
Создание цифровой модели местности
Оцифровка отсканированных чертежей
Управление настройками САПР
Тип
Основной
Для кого?
Для узкопрофильных компаний
nanoCAD Standart Build
КонфигурацияДля компаний из области строительства
Создание и редактирование чертежей
Поддержка *.dwg-формата
Печать документов в PDF
Поддержка приложений и скриптов
Оформление чертежей по стандартам СПДС
Оформление чертежей по стандартам ЕСКД
Универсальное 3D-моделирование
Расширенная поддержка 3D-форматов (STL, SAT, STP, IGES, JT, X_T, X_B, VRML и т.д.)
Создание цифровой модели местности
Оцифровка отсканированных чертежей
Управление настройками САПР
Тип
Конфигурация
Для кого?
Для компаний из области строительства
nanoCAD Standart Geo
КонфигурацияДля компаний из области изысканий
Создание и редактирование чертежей
Поддержка *.dwg-формата
Печать документов в PDF
Поддержка приложений и скриптов
Оформление чертежей по стандартам СПДС
Оформление чертежей по стандартам ЕСКД
Универсальное 3D-моделирование
Расширенная поддержка 3D-форматов (STL, SAT, STP, IGES, JT, X_T, X_B, VRML и т.д.)
Создание цифровой модели местности
Оцифровка отсканированных чертежей
Управление настройками САПР
Тип
Конфигурация
Для кого?
Для компаний из области изысканий
nanoCAD Standart Mech
КонфигурацияДля компаний из области машиностроения
Создание и редактирование чертежей
Поддержка *.dwg-формата
Печать документов в PDF
Поддержка приложений и скриптов
Оформление чертежей по стандартам СПДС
Оформление чертежей по стандартам ЕСКД
Универсальное 3D-моделирование
Расширенная поддержка 3D-форматов (STL, SAT, STP, IGES, JT, X_T, X_B, VRML и т.д.)
Создание цифровой модели местности
Оцифровка отсканированных чертежей
Управление настройками САПР
Тип
Конфигурация
Для кого?
Для компаний из области машиностроения
nanoCAD Pro
КонфигурацияДля крупного бизнеса с различными отраслевыми задачами
Создание и редактирование чертежей
Поддержка *.dwg-формата
Печать документов в PDF
Поддержка приложений и скриптов
Оформление чертежей по стандартам СПДС
Оформление чертежей по стандартам ЕСКД
Универсальное 3D-моделирование
Расширенная поддержка 3D-форматов (STL, SAT, STP, IGES, JT, X_T, X_B, VRML и т.д.)
Создание цифровой модели местности
Оцифровка отсканированных чертежей
Управление настройками САПР
Тип
Конфигурация
Для кого?
Для крупного бизнеса с различными отраслевыми задачами
nanoCAD Металлоконструкции
Разработка документации разделов КЖ и КМ
nanoCAD Стройплощадка
Организация строительства
nanoCAD BIM Электро
ТИМ-проекты по разделам ЭМ, ЭО, ЭН
nanoCAD BIM СКС
ТИМ-проекты по разделу СКС
nanoCAD BIM ОПС
ТИМ-проекты по разделу СБ
nanoCAD GeoniCS
Проекты в области землеустройства, изысканий и генплана
nanoCAD BIM ВК
ТИМ-проекты по разделу ВК
nanoCAD BIM Отопление
ТИМ-проекты по разделу ОВиК
TDMS Фарватер
Управление разработкой проектов
nanoCAD BIM Вентиляция
ТИМ-проекты по разделу ОВиК
nanoCAD Конструкции PS
Разработка документации разделов КЖ и КЖИ
nanoCAD Облака точек
Обработка данных 3D-сканирования
nanoCAD Механика PRO
3D-моделирование и проектирование в машиностроении
Модуль nanoCAD «Сети»
Трассировка инженерных коммуникаций
Модуль nanoCAD «Трассы»
Проектирование линейно-протяженных объектов
Модуль nanoCAD «Сечения»
Поперечные профиля по типовым конструкциям
Модуль nanoCAD «Геомодель»
Инженерно-геологические разрезы и колонки
Модуль nanoCAD «Генплан»
Генеральные планы и вертикальная планировка
nanoCAD BIM Строительство
ТИМ-проекты по разделам КР, КМ, КЖ, КД, АР
nano360
Онлайн-сервис для управления проектными данными
nanoCAD GeoSeries
Инженерные изыскания и проектирование трубопроводов
Модуль nanoCAD GeoniCS «Топоплан»
Для подготовки топографических карт и моделей рельефа
NSR Модуль требований
База знаний в области стандартизации проектирования
NSR Модуль разработки документов
Организация процесса разработки текстов стандартов
NSR Модуль семантической разметки документов
Преобразование текстов документов в машиночитаемый формат
NSR Модуль семантического анализа
Автоматизация перевода нормативных требований
NSR Модуль семантического поиска
ИИ для генерации ответа по тексту документов
TDMS Фарватер Web
Система документооборота и управления проектированием в строительстве
Преимущества
Автоматическое формирование отчетных документов
Охват ключевых потребностей по всей необходимой документации проекта, включая планы расположения оборудования, спецификации, структурную схему, отчеты по расчетам, кабельные журналы, табличные документы.
Автоматическое формирование отчетных документов
Формирование широкого перечня проектных документов (планы расположения оборудования и прокладки трубопроводов, аксонометрические схемы, гидравлические отчеты, спецификация и т.д.).
Избавление от рутинных операций, минимизация ошибок
При построении модели производятся инженерные расчеты по российским нормам, а также внутренний анализ и проверка проекта благодаря встроенным алгоритмам контроля.
Построение модели как при обычном, так и при BIM-проектировании
Вне зависимости от инженерной задачи – создать чертежи и документацию по проекту или встроить проект в BIM-технологию, – nanoCAD BIM ОПС всегда создает модель систем безопасности. Модель обеспечивает взаимодействие оборудования между собой, считывая связанную информацию и оперируя актуальными данными.
Построение модели как при обычном, так и при BIM-проектировании
Вне зависимости от инженерной задачи – создать чертежи и документацию по проекту или встроить проект в BIM-технологию – nanoCAD BIM СКС всегда создает модель структурированной кабельной системы. Модель обеспечивает взаимодействие оборудования между собой, считывая связанную информацию и оперируя актуальными данными.
Работа с базами данных производителей оборудования
Базы моделей оборудования более чем 20 производителей структурированных кабельных систем, шкафов и кабеленесущих систем. Все базы открыты для редактирования и пополнения.
Новые возможности
Другие изменения
Повышены стабильность и скорость работы продукта, реализованы замечания и пожелания, высказанные в обращениях к разработчикам и на официальном форуме, а также исправлены неточности, собранные online-системой регистрации ошибок.
Модернизация маркеров
Внедрена возможность выгрузки оборудования по маркерам во вложенных объектах, таких как шлейфы и узлы крепления лотков.
Вывод документов
Добавлена возможность вывода документов в форматы DOCX и XLSX без офисных приложений и с увеличением скорости экспорта.
Панель инструментов
Добавлена команда редактирования выносок (CW_NOTE_CONFIG).
Группа команд
Добавлена группа команд «Изменить высоту», состоящая из:
команды «Изменить высоту», изменяющей высоту установки/прокладки выбранных объектов/трасс, имеющих в свойствах высоту установки или высоту прокладки;
команды «Изменить высоту трасс», изменяющей высоту прокладки только выбранных трасс, даже если в выборе есть объекты, имеющие в свойствах высоту установки;
команды «Изменить высоту объектов», изменяющей высоту установки объектов, имеющих в свойствах высоту установки, даже если в выборе есть трассы.
После запуска команды появляется запрос на ввод смещения/приращения по высоте в миллиметрах, причем значения могут быть как положительными, так и отрицательными.
Инструменты для работы с трассами
Улучшен функционал работы с трассами.
Команды «Проложить трассу с каналом», «Проложить от…» и «Соединить объекты» объединены в одну группу команд «Проложить»;
В диалоге «Настройка трассы» реализовано свойство «Забирать высоту объекта/трассы». Если свойство установлено в значение «Да», то при прокладке трассы будет задана высота объекта, от которого она ведется;
В диалоге «Настройка трассы» добавлено свойство «Прокладывать в опусках». Если свойство установлено в значение «Да», то при прокладке трассы будет задан тип КНС, соответствующий трассе;
Внедрена возможность проложить трассы с уклоном;
При использовании команды «Специальная выноска» доступны три новых вида выносок для трасс: «Уклон», «Уклон (градусы)» и «Уклон (градусы) с выносной линией»;
Поддерживается автоматическая установка перепадов высот при изменении высоты сегмента трассы, которая применяется только к выделенным сегментам и осуществляется через новую команду «Изменить высоту трасс» с присвоением такого же типа КНС, как у сегмента;
Реализована возможность автоматического задания уклонов при изменении высоты сегмента трассы. Изменения применяются только к выделенным сегментам, если сегмент разделен соединительными элементами, с использованием новой команды «Изменить высоту трасс»;
Добавлен автоматический расчет уклонов при изменении высоты сегментов трассы (включая разбитые соединительными элементами). Работает в команде «Изменить высоту трасс»;
Осуществлена возможность группового выбора объектов и трасс в командах «Проложить канал в существующих трассах» и «Удалить канал из трасс».
Экспорт данных
Улучшена выгрузка модели кабеленесущих систем в формат IFC и для среды общих данных CADLib Модель и Архив: теперь в модель включается кабельный канал (лоток, короб, труба) с характеристиками из баз данных, полученными при проектировании.
Поддержка новейшей версии Платформы nanoCAD
nanoCAD BIM СКС 25.0 устанавливается на Платформу nanoCAD 25.0.
Системные требования
Графическая платформа
Платформа nanoCAD
Процессор
Минимальные требования: процессор с тактовой частотой 2 ГГц
Рекомендуемые требования: процессор с тактовой частотой 3 ГГц и выше
Оперативная память
Минимальные требования: 4 Гб
Рекомендуемые требования: 16 Гб и выше
Видеоадаптер
Минимальные требования: графический процессор с поддержкой 3D-ускорения, объемом видеопамяти 1 Гб
Рекомендуемые требования: графический процессор с поддержкой 3D-ускорения, объемом видеопамяти 4 Гб (поддерживающий OpenGL 2.1 или DirectX 11)
Место на диске
Минимальные требования: 10 Гб
Рекомендуемые требования: 150 Гб и более
Разрешение экрана
Стандартные мониторы: 1920 x 1080
Мониторы с высоким разрешением: до 3840 x 2160 (поддерживается в ОС Windows 10,11)
Сеть
На сервере лицензий и всех рабочих станциях, где будут работать приложения, использующие сетевое лицензирование, должен быть запущен протокол TCP/IP
Операционная система
Microsoft® Windows® 11
Microsoft® Windows® 10 (64-бит)
Microsoft Windows 8 (64-бит)
Для инсталляции программы требуется статус Администратора
Российский разработчик инженерного программного обеспечения: технологий автоматизированного проектирования (САПР/CAD), информационного моделирования (ТИМ/BIM) и сопровождения объектов промышленного и гражданского строительства (ПГС) на всех этапах жизненного цикла, а также сквозной цифровизации всех процессов в производстве. Основанная в 1989 году, компания занимается разработкой и внедрением программного обеспечения, включая такие инструменты, как nanoCAD, иные инструменты САПР и инновационные решения для проектирования, редактирования и моделирования. nanoCAD – это мощная платформа, обладающая обширными функциональными возможностями, предназначенная для создания чертежей, 2D и 3D моделирования. Приложение пользуется большой популярностью среди инженеров, архитекторов и проектировщиков. Компания постоянно развивается, стремясь предложить инновационные решения и инструменты, которые удовлетворяют потребности специалистов в области инженерии и дизайна. Нанософт активно работает над созданием новых технологий, чтобы обеспечить эффективные инструменты для профессионалов, работающих в разнообразных сферах проектирования и моделирования.
Скидка до 90%!На перевод постоянных лицензий Платформы nanoCAD!
К сайту подключен сервис веб-аналитики «Яндекс.Метрика», использующий cookie.
Оставаясь на сайте, вы соглашаетесь с
Политикой обработки персональных данных.