Модуль Платформы nanoCAD для оформления документации в строительной отрасли. Подходит как для классического 2D-проектирования, так и в качестве дополнения к BIМ/ТИМ
Модуль nanoCAD «СПДС» поставляется исключительно в комплектации Платформа nanoCAD в конфигурациях nanoCAD Standart Build и nanoCAD Pro.
Основные возможности модуля:
Автоматизированное оформление чертежей согласно российским стандартам СПДС
Обширная база параметрических объектов (металлические профили, ЖБИ, детали креплений)
Инструменты для создания архитектурных поэтажных планов
Автоматическое формирование спецификаций и ведомостей
Интеграция с BIM-технологиями, включая поддержку формата IFC
Возможность настройки под стандарты конкретного предприятия
Инструменты интеллектуального редактирования объектов
Модуль значительно ускоряет процесс разработки проектной и рабочей документации, обеспечивая высокое качество оформления и соответствие нормативным требованиям. Он может использоваться как самостоятельно для 2D-проектирования, так и в связке с BIM-решениями для оформления документации, полученной из информационных моделей
Задачи
Создание архитектурно-строительных чертежей зданий и сооружений.
Оформление строительных чертежей.
Разработка детализированных планов этажей, сечений, фасадов и других конструктивных решений.
Создание и редактирование блоков архитектурных элементов и деталей.
Возможности
Использование программы в составе средств комплексной автоматизации
Новая методика работы с *.dwg-форматом обеспечила возможность реализации технологии транзитного хранения данных, которая позволяет защитить целостность описания параметрических интеллектуальных объектов, созданных в других приложениях, внутри формата *.dwg (так называемые метаданные). После редактирования в nanoCAD СПДС файл может быть возвращен в эти приложения без потери описания созданных там о…
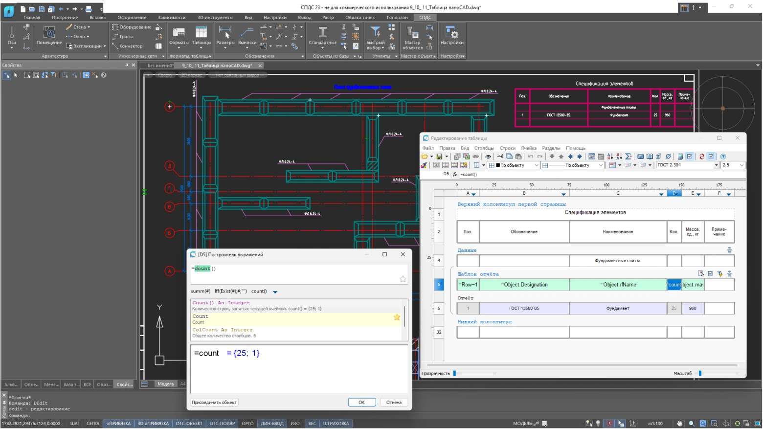
Автоматизация работы с табличными формами и связь с ними данных чертежа
nanoCAD СПДС предлагает мощные средства создания и редактирования таблиц и текста. В программе содержатся готовые шаблоны наиболее распространенных табличных форм и стандартных форматок чертежей. Все форматки полностью стандартизованы. Кроме того, всегда есть возможность создать собственную форматку и штамп – например, с заполненными сведениями о компании.
В базе данных прог…
Полная параметризация и высокий интеллект элементов оформления
Объекты nanoCAD СПДС обладают интеллектуальными свойствами, которые проявляются при взаимодействии объектов друг с другом и при редактировании. Объекты представляются единым набором примитивов, которые их составляют, и работают как единое целое. Специальные «ручки» позволяют растягивать, перемещать, поворачивать объект или изменять его геометрию путем других манипуляций, но при этом объект …
Поэтажные планы
Модуль «Архитектура» предоставляет возможность вычерчивать поэтажные планы с применением специальных инструментов и объектов. Основные инструменты и возможности модуля:
линейные и дуговые сегменты при построении стен;
настройка шаблонов стен – геометрии построения, толщины и состава материалов, штриховки, порядка построения и приоритета слоев и т.д.;
инструменты редактирования сте…
Полноценная работа по созданию двумерных чертежей
В состав функций платформы nanoCAD включено все необходимое при формировании двумерных чертежей. Программа предназначена для оформления готового чертежа, но пользователи могут создать чертеж и с чистого листа. Привычные инструменты помогут разработать чертеж любой сложности, отредактировать его, нанести размеры, поработать с многострочным или однострочным текстом, растром, внешними ссылками, блока…
Полная поддержка формата *.dwg
nanoCAD СПДС обеспечивает поддержку всех актуальных версий формата *.dwg (от DWG R11 до DWG2017). Абсолютная совместимость по формату файла позволяет поддерживать объемное отображение 3D-объектов, созданных в сторонних приложениях. Формат *.dwg является собственным форматом программы, все файлы сохраняются именно в нем. Графическое ядро представляет собой основу технологии интеллектуального чертеж…
Все необходимое для оформления чертежей по стандартам СПДС
Основной функцией nanoCAD СПДС является оформление проектно-конструкторской документации в соответствии со стандартами СПДС. Программа содержит богатый инструментарий на основе технологии интеллектуального чертежа для автоматизации рутинных операций по оформлению готовых чертежей: планов, фасадов, разрезов, сечений, видов, узлов и т.д. Средствами nanoCAD СПДС наносятся все необходимые элементы офо…
Геометрические характеристики сечения
Функция позволяет получить масс-инерционные характеристики любого замкнутого контура. Для каждой характеристики можно настраивать точность и единицы измерения, а расчет характеристик выполнять относительно любых осей.
Записная книжка
Для ввода постоянно повторяющихся типовых текстовых выражений (аббревиатур, символов и т.д.) применяется инструмент «Записная книжка». Инструмент интегрирован в диалоговые окна элементов оформления СПДС.
Настройка оформления
Все элементы оформления имеют гибкие настройки: можно изменить шрифты, типы линий, толщину элементов и даже слои, на которые будут автоматически добавляться объекты. Это удобно при использовании общего стандарта предприятия.
Мастер объектов и параметрические объекты
Параметрический инструмент для создания типовых деталей. Распознаёт пользовательскую графику и позволяет указывать табличные параметры. Поддерживает создание нескольких видов и исполнений, пользовательских диалогов для стандартных деталей, а также контуров подавления для перекрытия примитивов.
Автоматические отчеты
С помощью инструмента Автоматические отчеты можно получить информацию в табличной форме из различных объектов чертежа, включая линии, полилинии, блоки, объекты оформления СПДС, а также универсальные маркеры и параметрические объекты. При этом между объектами и отчетом выстраивается двусторонняя связь, которая позволяет вносить в объекты изменения через таблицу.
Отметки уровня
Значение отметки вычисляется автоматически и составляет расстояние по оси Y от точки вставки базовой отметки уровня до указанной точки отметки уровня (для базовой отметки значение по умолчанию равно 0).
Разрывы, обрывы
Инструменты группы «Разрывы и обрывы» автоматически скрывают часть геометрии на чертеже.
Координационные оси
Наборы специальных инструментов для автоматической отрисовки координационных осей. В объектах поддерживается автоматическая нумерация согласно ГОСТ, автоматически устанавливаются ассоциативные размеры.
Расширенная поддержка 3D-форматов (STL, SAT, STP, IGES, JT, X_T, X_B, VRML и т.д.)
Создание цифровой модели местности
Оцифровка отсканированных чертежей
Управление настройками САПР
Тип
Основной
Конфигурация
Конфигурация
Конфигурация
Конфигурация
Для кого?
Для узкопрофильных компаний
Для компаний из области строительства
Для компаний из области изысканий
Для компаний из области машиностроения
Для крупного бизнеса с различными отраслевыми задачами
nanoCAD
ОсновнойДля узкопрофильных компаний
Создание и редактирование чертежей
Поддержка *.dwg-формата
Печать документов в PDF
Поддержка приложений и скриптов
Оформление чертежей по стандартам СПДС
Оформление чертежей по стандартам ЕСКД
Универсальное 3D-моделирование
Расширенная поддержка 3D-форматов (STL, SAT, STP, IGES, JT, X_T, X_B, VRML и т.д.)
Создание цифровой модели местности
Оцифровка отсканированных чертежей
Управление настройками САПР
Тип
Основной
Для кого?
Для узкопрофильных компаний
nanoCAD Standart Build
КонфигурацияДля компаний из области строительства
Создание и редактирование чертежей
Поддержка *.dwg-формата
Печать документов в PDF
Поддержка приложений и скриптов
Оформление чертежей по стандартам СПДС
Оформление чертежей по стандартам ЕСКД
Универсальное 3D-моделирование
Расширенная поддержка 3D-форматов (STL, SAT, STP, IGES, JT, X_T, X_B, VRML и т.д.)
Создание цифровой модели местности
Оцифровка отсканированных чертежей
Управление настройками САПР
Тип
Конфигурация
Для кого?
Для компаний из области строительства
nanoCAD Standart Geo
КонфигурацияДля компаний из области изысканий
Создание и редактирование чертежей
Поддержка *.dwg-формата
Печать документов в PDF
Поддержка приложений и скриптов
Оформление чертежей по стандартам СПДС
Оформление чертежей по стандартам ЕСКД
Универсальное 3D-моделирование
Расширенная поддержка 3D-форматов (STL, SAT, STP, IGES, JT, X_T, X_B, VRML и т.д.)
Создание цифровой модели местности
Оцифровка отсканированных чертежей
Управление настройками САПР
Тип
Конфигурация
Для кого?
Для компаний из области изысканий
nanoCAD Standart Mech
КонфигурацияДля компаний из области машиностроения
Создание и редактирование чертежей
Поддержка *.dwg-формата
Печать документов в PDF
Поддержка приложений и скриптов
Оформление чертежей по стандартам СПДС
Оформление чертежей по стандартам ЕСКД
Универсальное 3D-моделирование
Расширенная поддержка 3D-форматов (STL, SAT, STP, IGES, JT, X_T, X_B, VRML и т.д.)
Создание цифровой модели местности
Оцифровка отсканированных чертежей
Управление настройками САПР
Тип
Конфигурация
Для кого?
Для компаний из области машиностроения
nanoCAD Pro
КонфигурацияДля крупного бизнеса с различными отраслевыми задачами
Создание и редактирование чертежей
Поддержка *.dwg-формата
Печать документов в PDF
Поддержка приложений и скриптов
Оформление чертежей по стандартам СПДС
Оформление чертежей по стандартам ЕСКД
Универсальное 3D-моделирование
Расширенная поддержка 3D-форматов (STL, SAT, STP, IGES, JT, X_T, X_B, VRML и т.д.)
Создание цифровой модели местности
Оцифровка отсканированных чертежей
Управление настройками САПР
Тип
Конфигурация
Для кого?
Для крупного бизнеса с различными отраслевыми задачами
nanoCAD Металлоконструкции
Разработка документации разделов КЖ и КМ
nanoCAD Стройплощадка
Организация строительства
nanoCAD BIM Электро
ТИМ-проекты по разделам ЭМ, ЭО, ЭН
nanoCAD BIM СКС
ТИМ-проекты по разделу СКС
nanoCAD BIM ОПС
ТИМ-проекты по разделу СБ
nanoCAD GeoniCS
Проекты в области землеустройства, изысканий и генплана
nanoCAD BIM ВК
ТИМ-проекты по разделу ВК
nanoCAD BIM Отопление
ТИМ-проекты по разделу ОВиК
TDMS Фарватер
Управление разработкой проектов
nanoCAD BIM Вентиляция
ТИМ-проекты по разделу ОВиК
nanoCAD Конструкции PS
Разработка документации разделов КЖ и КЖИ
nanoCAD Облака точек
Обработка данных 3D-сканирования
nanoCAD Механика PRO
3D-моделирование и проектирование в машиностроении
Модуль nanoCAD «Сети»
Трассировка инженерных коммуникаций
Модуль nanoCAD «Трассы»
Проектирование линейно-протяженных объектов
Модуль nanoCAD «Сечения»
Поперечные профиля по типовым конструкциям
Модуль nanoCAD «Геомодель»
Инженерно-геологические разрезы и колонки
Модуль nanoCAD «Генплан»
Генеральные планы и вертикальная планировка
nanoCAD BIM Строительство
ТИМ-проекты по разделам КР, КМ, КЖ, КД, АР
nano360
Онлайн-сервис для управления проектными данными
nanoCAD GeoSeries
Инженерные изыскания и проектирование трубопроводов
Модуль nanoCAD GeoniCS «Топоплан»
Для подготовки топографических карт и моделей рельефа
NSR Модуль требований
База знаний в области стандартизации проектирования
NSR Модуль разработки документов
Организация процесса разработки текстов стандартов
NSR Модуль семантической разметки документов
Преобразование текстов документов в машиночитаемый формат
NSR Модуль семантического анализа
Автоматизация перевода нормативных требований
NSR Модуль семантического поиска
ИИ для генерации ответа по тексту документов
TDMS Фарватер Web
Система документооборота и управления проектированием в строительстве
nanoCAD комплект Строительство
Проектирование зданий и сооружений
nanoCAD комплект Инженерия
Проектирование всех инженерных разделов
nanoCAD комплект Землеустройство
Изыскания и землеустройство
nanoCAD комплект Корпоративный
Комплексное проектирование для всех подразделений
Преимущества
Библиотеки параметрических объектов
Большой выбор параметрических стандартных элементов (ГОСТ, ОСТ, DIN и ISO). В сочетании с возможностью создания пользовательских типовых элементов это позволяет значительно сократить сроки разработки проекта, максимально уменьшить объем рутинной работы и полностью сконцентрироваться на инженерном творчестве.
Поддержка BCF
Формат BCF (BIM Collaboration Format) используется в области строительства и архитектуры для обмена информацией и совместной работы над проектами в формате BIM. BCF позволяет различным участникам проекта добавлять комментарии, замечания и отметки на трехмерную модель проекта. Фиксируйте изменения в проекте и отслеживайте их историю.
Утилиты оформления
Мы собрали самые полезные инструменты для автоматизации рутинных операций. Вы сможете объединить отдельные отрезки и тексты в таблицу nanoCAD, автоматически пронумеровать любой объект чертежа, увеличить/уменьшить выделенную графику с помощью команды Копировать фрагмент или создать собственный объект с вычисляемыми свойствами.
О разработчике
Российский разработчик инженерного программного обеспечения: технологий автоматизированного проектирования (САПР/CAD), информационного моделирования (ТИМ/BIM) и сопровождения объектов промышленного и гражданского строительства (ПГС) на всех этапах жизненного цикла, а также сквозной цифровизации всех процессов в производстве. Основанная в 1989 году, компания занимается разработкой и внедрением программного обеспечения, включая такие инструменты, как nanoCAD, иные инструменты САПР и инновационные решения для проектирования, редактирования и моделирования. nanoCAD – это мощная платформа, обладающая обширными функциональными возможностями, предназначенная для создания чертежей, 2D и 3D моделирования. Приложение пользуется большой популярностью среди инженеров, архитекторов и проектировщиков. Компания постоянно развивается, стремясь предложить инновационные решения и инструменты, которые удовлетворяют потребности специалистов в области инженерии и дизайна. Нанософт активно работает над созданием новых технологий, чтобы обеспечить эффективные инструменты для профессионалов, работающих в разнообразных сферах проектирования и моделирования.
Скидка до 90%!На перевод постоянных лицензий Платформы nanoCAD!
К сайту подключен сервис веб-аналитики «Яндекс.Метрика», использующий cookie.
Оставаясь на сайте, вы соглашаетесь с
Политикой обработки персональных данных.