Россия, Омск,
ул. 8 Марта 8, оф. 9-10

Программа позволяет:
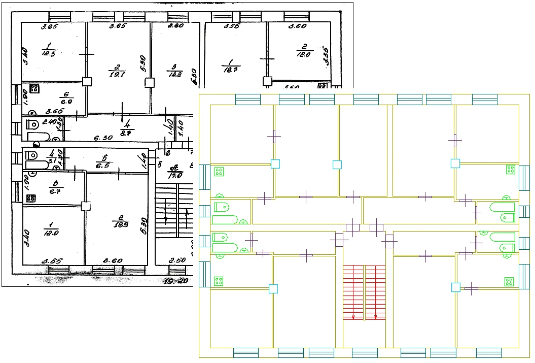
Наличие пересечений площадных объектов, наложение контуров, дублирование объектов, корректность геометрии стен, корректность контура объектов, соблюдение ортогональности, наложение текстовых надписей на чертеже и т.д.
Подпишитесь на рассылку и будьте в курсе последних новостей!