Флагманский продукт серии — профессиональный инструмент кадастрового инженера, предназначенный для создания технических и межевых планов на все виды объектов кадастрового учета.
Документы формируются в текстовом формате для печати и в электронном формате *.xml в строгом соответствии с xml-схемами и требованиями Росреестра. Поддерживается автоматическое формирование пакета выгрузки с электронной подписью для передачи в ЕГРН. Программа позволяет выполнять кадастровые работы для объектов учета любой сложности и объема, таких как многоконтурные комплексные или протяженные объекты, состоящие из сотен контуров и нескольких тысяч характерных точек.
Задачи
Формирование межевых планов в печатном и электронном виде в формате XML в строгом соответствии с приказами Минэкономразвития России.
Формирование полного пакета документов для постановки объектов недвижимости на государственный кадастровый учет.
Автоматическое создание графических разделов межевого плана.
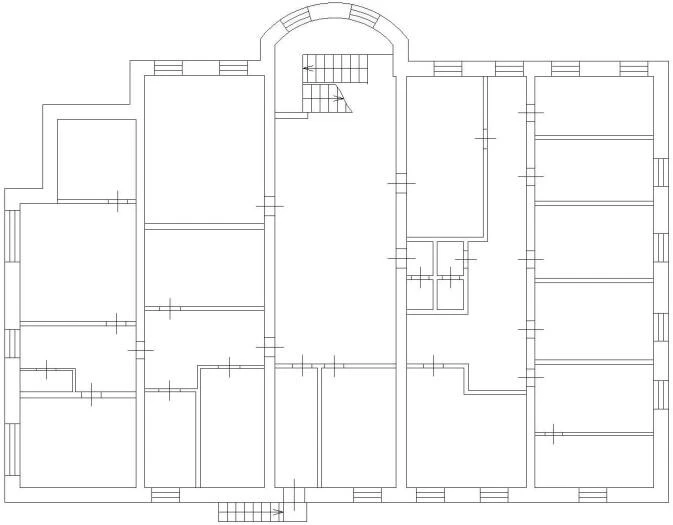
Создание поэтажных планов и планов территорий, коммуникационных сетей и т.д..
Возможности
Работа с растром
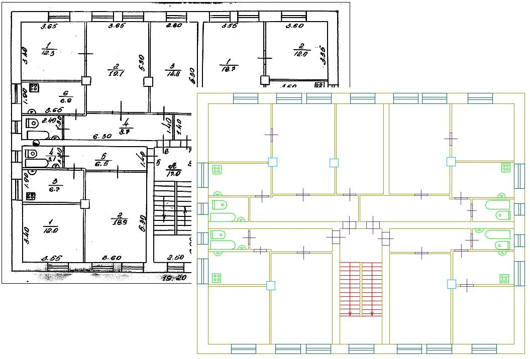
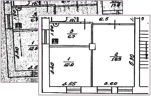
При работе с проектом вы сможете в полной мере использовать сканированные растровые изображения. Сканированное изображение зачастую имеет ряд недостатков, среди которых — искажения, растровый «мусор», лишние объекты плана, пометки ручкой, лишние надписи. Случается, что на плане отсутствует необходимая информация, неверен масштаб и т.д. Инструменты редактирования растра позволят автоматически или в…
Распознавание и векторизация
Уникальные инструменты распознавания растровых поэтажных планов помогут вам сократить время отрисовки таких планов.
Перед распознаванием пользователю предлагается выбрать типы объектов, которые будут размещены поверх растровой подложки, и провести «обучение» программы для распознавания объектов.
Результатом распознавания станет параметрический векторный поэтажный план, состоящий из стен, окон и …
Выкопировка / Фрагмент плана / Экспликация
Логическая структура плана позволяет посредством команды Вырезать по контуру получать из плана этажа фрагменты, ограниченные контуром комнаты, помещения или простой полилинии.
Команда Выкопировка имеет настройки, которые позволяют включать/отключать на выкопировке те или иные объекты (стены, контуры, размеры и т.д.).
В результате пользователь получает план этажа с набором выбранных объектов.
На…
План этажа, технологии построения
Построение и редактирование плана производятся с применением двух основных технологий — классической и контурной. В процессе работы могут использоваться как одна из них, так и обе технологии одновременно.
При работе по классической технологии построение производится с использованием стандартных или пользовательских шаблонов стен, окон, дверей, колонн и т.д.
Эта технология базируется на принципах…
Создание объекта учета
Объекты учета (земельный участок, здание, сооружение или помещение) могут быть построены как в ручном режиме, с последовательным указанием характерных точек курсором и заданием параметров контура, так и в автоматическом режиме на основе существующих характерных точек.
Также возможно автоматическое формирование контура посредством введенных списком координат характерных точек, полученных с печатны…
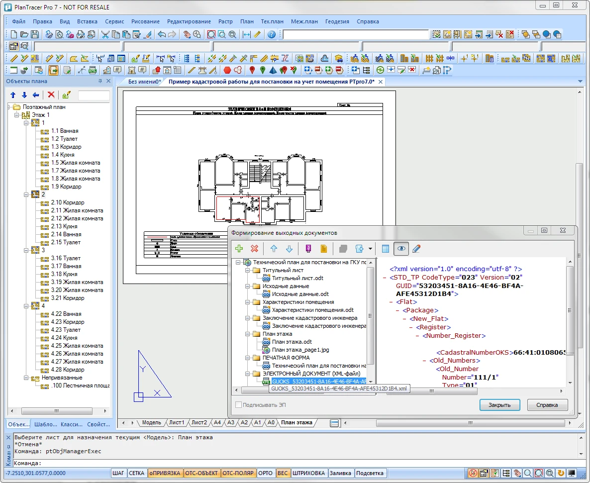
Основное окно программы
PlanTracer Pro 8 позволяет полностью автоматизировать работы по кадастровой деятельности и выполнению графической части для технической инвентаризации, подготовить все виды технических и межевых планов, предоставляемых в органы кадастрового учета в печатной и электронной форме на основе созданной графической части. Профессиональный графический редактор обеспечивает возможность создавать поэтажные …
Импорт / Ввод геоданных
Для работы с графическими объектами в качестве исходной информации используются данные от геодезиста, содержащие результаты съемки. Они импортируются средствами программы. Мастер настроек импорта данных геодезии позволяет вводить информацию в разнообразных форматах и представлениях, а также выполнять координатные преобразования «на лету». Контур участка, здания и других объектов появляется на экра…
Выходные документы / Электронная подпись
Сформировать технический план вы можете в печатной и электронной форме, в любой момент открыв документ для проверки и редактирования. Программа позволяет добавить в пакет выгрузки, который представляет собой zip-архив, документы и их сканированные копии, а также графические разделы технического плана в формате *.jpg.
В процессе формирования архива происходит автоматическая проверка файла *.xml на…
Графический раздел технического плана
Перечень графических разделов части печатной формы технического плана зависит от вида кадастровой работы.
При формировании листа графического раздела программа запрашивает формат, ориентацию бумаги и масштаб.
На каждом листе раздела устанавливаются соответствующие разделу объекты (здание, сооружение, помещение и т.п.), а также редактируемая таблица условных обозначений.
Реестры и справочники
Система ведет реестры кадастровых работ и всех часто используемых сведений (физические и юридические лица, документы, приборы, ОМС), так что все необходимые поля могут быть заполнены без ручного ввода информации. Даже на этом этапе представлены средства контроля — например, при выборе средств измерений из реестра выполняется проверка срока действия сертификата. При обнаружении просроченного сертиф…
Современный графический редактор
Все программы серии PlanTracer основаны на отечественной универсальной САПР-платформе, содержащей все необходимые инструменты базового проектирования и выпуска чертежей. В новейших версиях повышена производительность при работе с чертежами, содержащими большое количество контуров и точек объектов кадастрового учета. Платформа версий 6.х и 7.х имеет внутренний формат *.dwg и *.dxf. PlanTracer ТехПл…
Расширенная поддержка 3D-форматов (STL, SAT, STP, IGES, JT, X_T, X_B, VRML и т.д.)
Создание цифровой модели местности
Оцифровка отсканированных чертежей
Управление настройками САПР
Тип
Основной
Конфигурация
Конфигурация
Конфигурация
Конфигурация
Для кого?
Для узкопрофильных компаний
Для компаний из области строительства
Для компаний из области изысканий
Для компаний из области машиностроения
Для крупного бизнеса с различными отраслевыми задачами
nanoCAD
ОсновнойДля узкопрофильных компаний
Создание и редактирование чертежей
Поддержка *.dwg-формата
Печать документов в PDF
Поддержка приложений и скриптов
Оформление чертежей по стандартам СПДС
Оформление чертежей по стандартам ЕСКД
Универсальное 3D-моделирование
Расширенная поддержка 3D-форматов (STL, SAT, STP, IGES, JT, X_T, X_B, VRML и т.д.)
Создание цифровой модели местности
Оцифровка отсканированных чертежей
Управление настройками САПР
Тип
Основной
Для кого?
Для узкопрофильных компаний
nanoCAD Standart Build
КонфигурацияДля компаний из области строительства
Создание и редактирование чертежей
Поддержка *.dwg-формата
Печать документов в PDF
Поддержка приложений и скриптов
Оформление чертежей по стандартам СПДС
Оформление чертежей по стандартам ЕСКД
Универсальное 3D-моделирование
Расширенная поддержка 3D-форматов (STL, SAT, STP, IGES, JT, X_T, X_B, VRML и т.д.)
Создание цифровой модели местности
Оцифровка отсканированных чертежей
Управление настройками САПР
Тип
Конфигурация
Для кого?
Для компаний из области строительства
nanoCAD Standart Geo
КонфигурацияДля компаний из области изысканий
Создание и редактирование чертежей
Поддержка *.dwg-формата
Печать документов в PDF
Поддержка приложений и скриптов
Оформление чертежей по стандартам СПДС
Оформление чертежей по стандартам ЕСКД
Универсальное 3D-моделирование
Расширенная поддержка 3D-форматов (STL, SAT, STP, IGES, JT, X_T, X_B, VRML и т.д.)
Создание цифровой модели местности
Оцифровка отсканированных чертежей
Управление настройками САПР
Тип
Конфигурация
Для кого?
Для компаний из области изысканий
nanoCAD Standart Mech
КонфигурацияДля компаний из области машиностроения
Создание и редактирование чертежей
Поддержка *.dwg-формата
Печать документов в PDF
Поддержка приложений и скриптов
Оформление чертежей по стандартам СПДС
Оформление чертежей по стандартам ЕСКД
Универсальное 3D-моделирование
Расширенная поддержка 3D-форматов (STL, SAT, STP, IGES, JT, X_T, X_B, VRML и т.д.)
Создание цифровой модели местности
Оцифровка отсканированных чертежей
Управление настройками САПР
Тип
Конфигурация
Для кого?
Для компаний из области машиностроения
nanoCAD Pro
КонфигурацияДля крупного бизнеса с различными отраслевыми задачами
Создание и редактирование чертежей
Поддержка *.dwg-формата
Печать документов в PDF
Поддержка приложений и скриптов
Оформление чертежей по стандартам СПДС
Оформление чертежей по стандартам ЕСКД
Универсальное 3D-моделирование
Расширенная поддержка 3D-форматов (STL, SAT, STP, IGES, JT, X_T, X_B, VRML и т.д.)
Создание цифровой модели местности
Оцифровка отсканированных чертежей
Управление настройками САПР
Тип
Конфигурация
Для кого?
Для крупного бизнеса с различными отраслевыми задачами
nanoCAD Металлоконструкции
Разработка документации разделов КЖ и КМ
nanoCAD Стройплощадка
Организация строительства
nanoCAD BIM Электро
ТИМ-проекты по разделам ЭМ, ЭО, ЭН
nanoCAD BIM СКС
ТИМ-проекты по разделу СКС
nanoCAD BIM ОПС
ТИМ-проекты по разделу СБ
nanoCAD GeoniCS
Проекты в области землеустройства, изысканий и генплана
nanoCAD BIM ВК
ТИМ-проекты по разделу ВК
nanoCAD BIM Отопление
ТИМ-проекты по разделу ОВиК
TDMS Фарватер
Управление разработкой проектов
nanoCAD BIM Вентиляция
ТИМ-проекты по разделу ОВиК
nanoCAD Конструкции PS
Разработка документации разделов КЖ и КЖИ
nanoCAD Облака точек
Обработка данных 3D-сканирования
nanoCAD Механика PRO
3D-моделирование и проектирование в машиностроении
Модуль nanoCAD «Сети»
Трассировка инженерных коммуникаций
Модуль nanoCAD «Трассы»
Проектирование линейно-протяженных объектов
Модуль nanoCAD «Сечения»
Поперечные профиля по типовым конструкциям
Модуль nanoCAD «Геомодель»
Инженерно-геологические разрезы и колонки
Модуль nanoCAD «Генплан»
Генеральные планы и вертикальная планировка
nanoCAD BIM Строительство
ТИМ-проекты по разделам КР, КМ, КЖ, КД, АР
nano360
Онлайн-сервис для управления проектными данными
nanoCAD GeoSeries
Инженерные изыскания и проектирование трубопроводов
Модуль nanoCAD GeoniCS «Топоплан»
Для подготовки топографических карт и моделей рельефа
NSR Модуль требований
База знаний в области стандартизации проектирования
NSR Модуль разработки документов
Организация процесса разработки текстов стандартов
NSR Модуль семантической разметки документов
Преобразование текстов документов в машиночитаемый формат
NSR Модуль семантического анализа
Автоматизация перевода нормативных требований
NSR Модуль семантического поиска
ИИ для генерации ответа по тексту документов
TDMS Фарватер Web
Система документооборота и управления проектированием в строительстве
nanoCAD комплект Строительство
Проектирование зданий и сооружений
nanoCAD комплект Инженерия
Проектирование всех инженерных разделов
nanoCAD комплект Землеустройство
Изыскания и землеустройство
nanoCAD комплект Корпоративный
Комплексное проектирование для всех подразделений
Новые возможности
Обновлена XML-схема, предназначенная для формирования электронного документа — технического плана версии 06 (TP_v06.xsd)
Доработан диалог выбора сертификата электронной подписи
Реализован импорт/экспорт проектов кадастровых работ
Реализован функционал для создания и заполнения формул расчета средней квадратической погрешности определения координат характерных точек
Добавлен каталог пунктов геодезической сети для сохранения и управления данными о таких пунктах
Добавлена возможность формирования технического плана для образования здания (многоквартирного дома) с одновременным образованием помещений в нем
Добавлена возможность формирования технического плана для образования здания/сооружения с одновременным образованием помещений в нем
Усовершенствован функционал создания многоконтурных объектов недвижимости, представляющих собой совокупность таких контуров с учетом типа контура (наземный, надземный, подземный)
Появилась возможность массового сохранения ZIP-пакетов технических планов без необходимости запуска проекта
Усовершенствована проверка XML-файлов
Обновлены печатные формы технического плана помещения, здания, сооружения, ОНС и акта обследования
Обновлен импорт электронных документов, содержащих сведения ЕГРН об объектах недвижимости
Доработаны объекты недвижимости: земельный участок, здание, сооружение, помещение, ОНС, части объектов недвижимости
Доработан функционал для формирования графических разделов технического плана
Доработаны разделы кадастровой работы: сведения о заказчике, сведения о кадастровом инженере
Добавлены новые справочники для объектов недвижимости (помещение, здание, сооружение, помещение, ОНС)
Введены новые атрибуты для объектов недвижимости (помещение, здание, сооружение, ОНС)
Улучшена производительность платформы
Исправлены общие недочеты
Системные требования
Процессор
Минимальные требования: Intel Pentium IV и выше
Оперативная память
Минимальные требования: 1 Гб
Рекомендуемые требования: 4 Гб и выше
Видеоадаптер
Минимальные требования: графический процессор с поддержкой 3D-ускорения, объемом видеопамяти 1 Гб
Рекомендуемые требования: графический процессор с поддержкой 3D-ускорения, объемом видеопамяти 4 Гб (поддерживающий OpenGL 2.1 или DirectX 11)
Место на диске
500 Мб и более на системном диске
Разрешение экрана
Минимальные требования: 1024х768 px
Рекомендуемые требования: 1280х1024 px
Дополнительное оборудование
USB-порт (при установке программы с соответствующего носителя)
Мышь или другие устройства указания
Операционная система
Windows 7 (32-bit, 64-bit);
Windows 8 (32-bit, 64-bit);
Windows 10 (32-bit, 64-bit).
О разработчике
CSoft Development — российский разработчик инженерного программного обеспечения и технологий: САПР, BIM, комплексных решений для машиностроения, промышленного и гражданского строительства, архитектурного проектирования, землеустройства, электронного документооборота, обработки сканированных чертежей, векторизации и гибридного редактирования – с многолетним опытом работы на рынке. Компания создает уникальные решения для управления инженерными данными по российским нормам и стандартам. Предлагаемые компанией CSoft Development современные разработки на базе 2D- и 3D-технологий – Model Studio CS и CADLib Model и Архив, TDMS, AutomatiCS, MechaniCS и многие другие – позволяют проектным организациям автоматизировать выполнение множества повседневных задач, значительно повысить конкурентоспособность и культуру производства, открывают перспективы освоения новейших методик проектирования, позволяют решать задачи в области САПР на самом высоком уровне и с учетом российских реалий.
Скидка до 90%!На перевод постоянных лицензий Платформы nanoCAD!
К сайту подключен сервис веб-аналитики «Яндекс.Метрика», использующий cookie.
Оставаясь на сайте, вы соглашаетесь с
Политикой обработки персональных данных.